Sangat Membantu

Cara Menghitung Kubikasi


Cara Menghitung Kubikasi Dan Volume Barang Jasa Pengiriman Batam Jasa Pengiriman Medan
regarlitrans.co.id

Cara Menghitung Volume Gabungan Idschool
idschool.net

Cara Menghitung Volume Pekerjaan Drainase Materi Teknik Sipil Insinyur Go Blog
www.insinyurgoblog.com

Menghitung Volume Akhir Brainly Co Id
brainly.co.id

Cara Menghitung Volume Pondasi Batu Kali Kumpul Engineer
www.kumpulengineer.com

Ide Bangunan Cara Menghitung Volume Dan Rab Pasangan Pondasi Batu Kali
idebangunan.blogspot.com

Rumus Dan Cara Menghitung Volume Pekerjaan Rab
www.situstekniksipil.com

Inilah Cara Menghitung Volume Dan Kubikasi Di Perusahaan Pengiriman
www.kliklogistics.co.id

Cara Menghitung Volume Pekerjaan Dalam Rab Asdar Id
www.asdar.id

Cara Menghitung Volume Sloof Pondasi Arsipil
www.arsipil.com

Menghitung Volume Pekerjaan Beton Panduan Pengguna Sofware Rab
www.softwarerab.com

Menghitung Kubikasi Kayu Menghitung Kubikasi Kayu
lukipe.blogspot.com

Contoh Cara Menghitung Volume Talud Ide Bangunan Bangunan Dinding Penahan Perencanaan
www.pinterest.com

Cara Menghitung Volume Drainase Lasopamember
lasopamember475.weebly.com

Konversi Kayu Log Terhadap Kayu Gergajian Tentang Kayu
www.tentangkayu.com

Cara Mengerjakan Volume Bangun Ruang Guru Ilmu Sosial
www.ilmusosial.id

Cara Menghitung Volume Beton Pada Pekerjaan Saluran Air Dan Selokan Proyek Sipil Pdf Document
fdokumen.com

Perhitungan Volume Pekerjaan Rumah Tinggal Tipe 193
www.slideshare.net

Cara Menghitung Volume Tabung Dan Kerucut Sekolahpintar Youtube
www.youtube.com

Cara Menghitung Volume Tabung Yang Benar Cara Volume Personal Care
www.pinterest.com

Menghitung Volume Barang Lcl Samarinda Ekspedisi
samarindaekspedisi.wordpress.com

Cara Menghitung Volume Pada Bangun Ruang Elevenia Blog
blog.elevenia.co.id

Cara Menghitung Volume Beton Secara Online Semutsujud Blog Media Teknologi
semutsujud.blogspot.com

Cara Mudah Dan Cepat Menghitung Kubikasi Kayu Dalam Hitungan Detik Ato Basahona Share
www.atobasahona.com

Cara Menghitung Volume Bola Terpotong Volume Tembereng Bola Defantri Com
www.defantri.com

Cara Menghitung Volume Tabung Dengan Rumus Dalam Excel Adhe Pradiptha
www.adh-excel.com

Cara Menghitung Kubikasi Beton Indonesia Ready Mix
www.indonesiareadymix.com

Volume Hutan Kubik Cara Menghitung Cubature Kayu Bulat Cara Utama
mbdou42.ru

Inilah Cara Menghitung Volume Dan Kubikasi Di Perusahaan Pengiriman
www.kliklogistics.co.id

Cara Menghitung Volume Ukuran Tangki Air Kotak Tangki Fiberglass
tangkifiberglass.com

Cara Menghitung Volume Silinder
www.slideshare.net

Cara Menghitung Volume Air Kolam Secara Online Brankaspedia Blog Ulasan Teknologi
www.brankaspedia.com

Inilah Cara Menghitung Volume Dan Kubikasi Di Perusahaan Pengiriman
www.kliklogistics.co.id

Bagaimana Cara Menghitung Volume Gabungan Bangun Datar Antara Limas Dan Balok Brainly Co Id
brainly.co.id

Perhitungan Volume Pekerjaan Rumah Tinggal Tipe 193
www.slideshare.net

Cara Menghitung Kubikasi Beton Yang Benar
www.indosteger.co.id

Panduan Cara Menghitung Kubikasi Kayu Arafuru
arafuru.com

Cylinder Rumus Menghitung Volume Tabung Free Transparent Clipart Clipartkey
www.clipartkey.com

Cara Menghitung Kapasitas Tangki Air Di Rumah Listrik Di Rumah
listrikdirumah.com

Cara Perhitungan Volume Kebutuhan Urugan Tanah Ahadi
www.ahadi.id

Ide Bangunan Cara Menghitung Volume Galian Tanah Dengan Rumus Mudah
idebangunan.blogspot.com

Cara Menghitung Volume Pekerjaan Dinding Kumpul Engineer
www.kumpulengineer.com

Cara Menghitung Volume Pondasi Batu Kali
www.mangyono.com

Kalkulator Kubikasi Bam Cargo Jasa Ekspedisi Cargo Pilihan Masyarakat
bamcargo.co.id

Perbedaan Perhitungan Volumetrik Dan Kubikasi Gti Cargo Jakarta
www.garudatama.com

Cara Menghitung Volume Tabung Jadi Paham
jadipaham.com

Jne Suatu Paket Akan Dikenakan Volumetrik Apabila Volume Facebook
www.facebook.com

Cara Menghitung Volume Di Autocad Dengan Mudah
www.asifah.com

Cara Menghitung Rumus Volume Kerucut Matematika
rumusrumus.com

Rumus Kerucut Rumus Volume Kerucut Dan Luas Permukaan Kerucut
www.advernesia.com

Cara Menghitung Volume Galian Dan Timbunan Jalan Untuk Opname Pekerjaan Ilmuproyek Com
www.ilmuproyek.com

Begini Nih Rumus Cara Menghitung Cc Mesin Fastnlow Net
fastnlow.net

Cara Menghitung Kubikasi Kayu
bangunan.online

Rumus Volume Tabung Luas Permukaan Tinggi Dan Contoh Soal
www.gurupendidikan.co.id

Cara Ukur Bucket Pc Finall
id.scribd.com

Civilengineering Cara Mudah Menghitung Volume Tpt Tembok Penahan Tanah
civildoqument.blogspot.com

Cara Menghitung Inci Kubik 9 Langkah Dengan Gambar Wikihow
id.wikihow.com

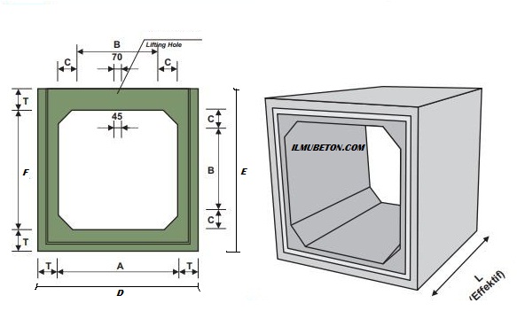
Kalkulator Praktis Menghitung Volume Box Culvert Ilmu Beton
www.ilmubeton.com

Cara Menghitung Volume Darah
id.scribd.com

Cara Menghitung Kubikasi Cor Beton Pada Bangunan Youtube
www.youtube.com

Cara Menghitung Volume Silinder 4 Langkah Dengan Gambar
id.wikihow.com

Index Of Wp Content Uploads 2017 11
solusibetonreadymix.com

Cara Praktis Menghitung Volume Plat Beton Steemit
steemit.com

Cara Menghitung Volume Pasangan Batu Kumpul Engineer
www.kumpulengineer.com

Cara Menghitung Volume Pekerjaan Pembagunan Rumah 2 Lantai
www.scribd.com

Doc Cara Menghitung Volume Pekerjaan Jalan Ikhtiar Jaya Academia Edu
www.academia.edu

Cara Menghitung Volume Satuan Pekerjaan Pondasi Rumah Sederhana Desainrumahsederhana Com
www.desainrumahsederhana.com

Cara Menghitung Kubikasi Dan Volume Barang Otomatis Himeji Express
himejiexpress.co.id

Cara Menghitung Volume Pekerjaan Drainase Kumpul Engineer
www.kumpulengineer.com

Cara Menghitung Volume Balok Dan Contoh Soal Rumus Volume Balok Andik My Id
www.andik.my.id

Cara Menghitung Kubikasi Atau Volumetrik Untuk Jasa Pengiriman Barang Atau Jasa Pindahan Sace Express
saceexpress.co.id

Panduan Menghitung Volume Panduan Hitung Volume Pekerjaan Konstruksi
www.softwarerab.com

Cara Menghitung Volume Pada Bangun Ruang Elevenia Blog
blog.elevenia.co.id

Cara Menghitung Volume Kubus Kubik Ukuran Dan Satuan
ukurandansatuan.com

Cara Menghitung Volume Bola Part1 Youtube
www.youtube.com

Cara Menghitung Volume Dan Kebutuhan Material Jalan Rabat Beton Kitasipil Com
www.kitasipil.com

Cara Menghitung Rumus Volume Balok Contoh Soal
rumus.co.id

Cara Menghitung Volume Tabung Yang Benar
definisipengertian.net

Cara Menghitung Volume Zat Cair Dalam Tabung Silinder Ukuran Dan Satuan
ukurandansatuan.com

Inilah Cara Menghitung Volume Pondasi Batu Kali By Bayu Saputra Medium
medium.com

Rumus Menghitung Volume Pengecoran Jasa Tukang Bangunan Kontraktorbangunan Pemborongbangunanelite Putra
www.eliteputra.com

Cara Menghitung Volume Sloof Sipilkusipilmu
www.sipilkusipilmu.com

1
encrypted-tbn0.gstatic.com

Cara Menghitung Volume Dan Rab Pasangan Pondasi Batu Kali Media Desa
www.karebadesa.id


d3sipilunj2013.wordpress.com

Index Of Wp Content Uploads 2020 02
idschool.net

Https Encrypted Tbn0 Gstatic Com Images Q Tbn 3aand9gcqopyk8hobpnm0nk9bpdbs0l7 Zotqlzwmyazhsdjnbktjwipsj Usqp Cau
encrypted-tbn0.gstatic.com

Https Encrypted Tbn0 Gstatic Com Images Q Tbn 3aand9gcsrbgubpu0yylkksbo5dvs5nas2glvvg3ifiwhcnoi Gzg39qbo Usqp Cau
encrypted-tbn0.gstatic.com

Cara Menghitung Volume Kotak Balok Ukuran Dan Satuan
ukurandansatuan.com

Cara Menghitung Volume Talud Pasangan Batu Arsipil
www.arsipil.com

Cara Menghitung Volume Beton Kolom Balok Dan Plat Lantai Rumah Proyek Sipil Lantai Lantai Beton Perencanaan
www.pinterest.com

Uds 0234 Cara Menghitung Volume Akuarium
ukurandansatuan.com

Cara Menghitung Kubikasi Volume Barang Kiriman Cargonesia Express
cargonesia.co.id

Cara Menghitung Volume Langkah Piston Dan Perbandingan Kompresi Teknik Otomotif Com
www.teknik-otomotif.com

Cara Menghitung Volume Pondasi Jalur Lengkap Dengan Material
perpusteknik.com

Cara Menghitung Volume Kerucut Yang Benar
caraharian.com

Cara Menghitung Volume Tabung Dan Contoh Soal
www.sheetmath.com

Cara Menghitung Volume Beton Bertulang Dan Tidak Bertulang
perpusteknik.com

Cara Menghitung Volume Kerucut Yang Benar Cara Volume Pie Chart
www.pinterest.com

Calculates The Volume Of Liquid In A Horizontal Cylindrical Freelancer
www.freelancer.com.jm

Cara Menghitung Volume Kubus Youtube
www.youtube.com

Cara Menghitung Volume Dan Kubikasi Pengiriman Barang Archives Gti Cargo
www.garudatama.com

Rumus Menghitung Volume Tabung Silinder Cara Aimyaya Cara Semua Cara
www.cara.aimyaya.com

close